Проекты бань
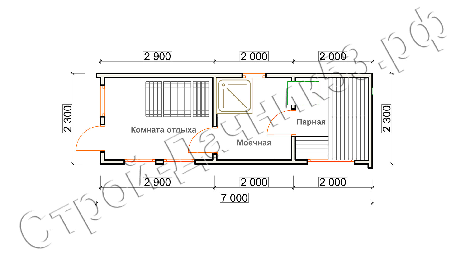
Мобильная баня Скандинавия–5
Заключаем договора на 2026г. по текущей цене и действующим акциям.
При заказе до 30.04.26, четыре подарка по Акции!
Размер
7x2.3м
Монтаж
5-8 дней
Площадь
16.1 м²
Этажи
1
Цены актуальны на 12.04.2026
Баня «с отделкой»
Брус140 × 140 мм
773 144 руб
736 328 руб
Каркас 150 мм
791 896 руб
754 187 руб
Каркас 100 мм
722 659 руб
688 247 руб
Брус 90 × 140 мм
703 907 руб
670 388 руб
- Бесплатная доставка в радиусе 400 км от базы!
- Цены и предложения на сайте актуальны!
- Дарим скидку 2% на следующий заказ.
Обратите внимание, для мобильных бань действуют другие акции при заказе, уточняйте у менеджеров!
Мы внесем в проект, нужные Вам изменения, либо разработаем для Вас индивидуальный проект. Кроме этого, любое наше акционное предложение можно заменить на более подходящее именно для Вас, мы ценим каждого клиента и готовы к конструктивному диалогу, пишите, звоните, заказывайте обратный звонок и мы обязательно придем к обоюдному соглашению.
Выполняем коммуникационные работы, установка электрики, водоснабжения, разводка, отопление. Для подробной информации обращайтесь к нашим специалистам по номерам телефонов на сайте




Написать в MAX